

مقدمه
در ساختمانها و پروژههای صنعتی، هندریلها یکی از اجزای ضروری برای حفظ ایمنی افراد و جلوگیری از بروز حوادثی مانند سقوط اشخاص یا اشیا به شمار میآیند. به همین دلیل، نصب هندریل در بسیاری از سازهها بر اساس الزامات ایمنی و استانداردهای فنی، امری الزامی است.
هندریلها با ایجاد یک حفاظ مطمئن در لبهها، مسیرهای تردد و سطوح مرتفع، نقش مهمی در کنترل حرکت افراد، کاهش ریسک حوادث و افزایش ایمنی محیطهای کاری دارند. این تجهیزات در فضاهای مختلفی از جمله راهپلهها و سکوهای صنعتی، کارخانهها، نیروگاهها، صنایع نفت، گاز و پتروشیمی، پشتبامها، رمپها، پلهای دسترسی و حتی برخی سازههای مسکونی مورد استفاده قرار میگیرند.
کارخانه مهرسام صنعت با سابقه فعالیت در زمینه طراحی و ساخت استراکچرهای فلزی و تجهیزات صنعتی، توانایی طراحی، ساخت و نصب انواع هندریلهای صنعتی را متناسب با نوع سازه و نیاز پروژه دارد.
در این مقاله، به معرفی انواع هندریلهای قابل ساخت در کارخانه مهرسام صنعت پرداخته و متریال مورد استفاده، ابعاد استاندارد و عوامل مؤثر بر هزینه ساخت هندریلها را بررسی میکنیم.
فهرست مطالب این نوشته
- هندریلها از چه اجزایی تشکیل میشوند؟
- ما در مهرسام چه هندریلهایی میسازیم؟
- هزینه ساخت هندریلهای صنعتی چگونه محاسبه میشود؟
- برای ساخت هندریلها از چه مقاطعی استفاده میشود؟
- هندریلهای صنعتی معمولاً با چه ابعادی ساخته میشوند؟
- هندریلهای صنعتی معمولاً با چه نوع اتصالاتی اجرا میشوند؟
- رنگآمیزی و محافظت هندریلهای صنعتی چگونه انجام میشود؟
هندریلها از چه اجزایی تشکیل میشوند؟
هندریلهای صنعتی معمولاً از المانهای افقی بهعنوان دستک، پایههای عمودی جهت اتصال به سازه یا راهپله، ورقهای فلزی اتصال و ورق پاخور تشکیل میشوند. بنا به شرایط پروژه، ممکن است المانهای میانی برای افزایش ایمنی و پوششهای محافظ سطحی بهمنظور افزایش دوام و مقاومت در برابر عوامل محیطی نیز به هندریل اضافه شوند.




ما در مهرسام چه هندریلهایی میسازیم؟
تمرکز کارخانه مهرسام صنعت بر طراحی و ساخت هندریلهای صنعتی مورد استفاده در کارخانهها و سازههای صنعتی است. این هندریلها متناسب با شرایط بهرهبرداری و الزامات ایمنی هر پروژه طراحی و تولید میشوند. متریال ساخت هندریلهای صنعتی مهرسام، عمدتاً فولاد ST-37 یا فولادهایی با خواص مکانیکی و شیمیایی مشابه است که استحکام، دوام و قابلیت ساخت مناسبی برای کاربردهای صنعتی دارند.
هزینه ساخت هندریلهای صنعتی چگونه محاسبه میشود؟
هزینه ساخت هندریلهای صنعتی به عوامل مختلفی از جمله نوع متریال مصرفی، مقاطع لولهای (پایپ)، پیچیدگی طراحی و شرایط پروژه بستگی دارد. از آنجا که متریال مورد استفاده در ساخت هندریلها با مصالح اصلی سازههای فلزی متفاوت است، معمولاً هزینه ساخت هندریلهای صنعتی بهصورت کیلویی و در بازهای حدود ۷۰ تا ۸۰ هزار تومان برآورد میشود.
در مقایسه با سایر اجزای سازههای صنعتی، ساخت هندریلها معمولاً با دورریز و پرت مصالح بیشتری همراه است و به دلیل جزئیات اجرایی، جوشکاریهای متعدد و نیاز به کنترل کیفیت دقیقتر، زمان ساخت آنها نیز طولانیتر است. به همین دلیل، هزینه نهایی ساخت هندریلها متناسب با نفر-ساعت ساخت، حجم کار و نوع پروژه محاسبه و تعیین میگردد.
برای ساخت هندریلها از چه مقاطعی استفاده میشود؟
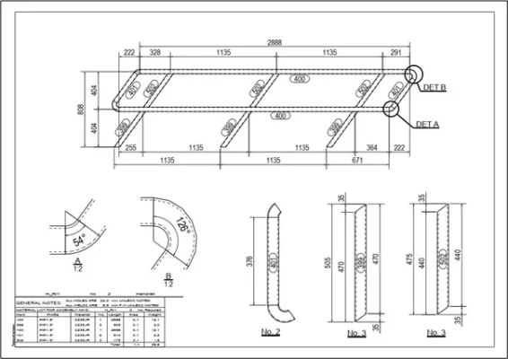
در ساخت هندریلهای صنعتی، عموماً از مقاطع لولهای فولادی استفاده میشود. رایجترین این مقاطع شامل پایپهای ۱ تا ۲ اینچ با ضخامت ۲ تا ۴ میلیمتر هستند. انتخاب نوع و ابعاد مقطع هندریل، متناسب با ارتفاع هندریل، شکل هندریل و شرایط بهرهبرداری سازه انجام میشود.
هندریلهای صنعتی معمولاً با چه ابعادی ساخته میشوند؟
هندریلهای صنعتی معمولاً با ارتفاعی در حدود ۱۰۰ تا ۱۱۰ سانتیمتر ساخته میشوند. با این حال، بسته به نوع سازه، محل نصب و کاربری پروژه و مطابق با ضوابط ایمنی و دستورالعملهای HSE، امکان تغییر ارتفاع هندریلها وجود دارد. فاصله پایههای هندریل معمولاً حداکثر ۱.۵ متر در نظر گرفته میشود. بهطور متداول، هندریلها در طولهای ۴.۵ متری با ۳ تا ۴ پایه و حداکثر ۶ متری با ۵ پایه طراحی و ساخته میشوند تا استحکام و ایمنی مناسب تأمین گردد.
بیشتر بدانید: هندریل صنعتی | طراحی، تولید و نصب
هندریلهای صنعتی معمولاً با چه نوع اتصالاتی اجرا میشوند؟
در فرآیند ساخت هندریلهای صنعتی، اجزای اصلی معمولاً بهصورت یکپارچه و کاملاً جوشی تولید میشوند. برای ایجاد تغییر مسیر در گوشهها و زوایا، از زانوهای لولهای استفاده میشود تا پیوستگی سازهای، استحکام و کیفیت ظاهری هندریل حفظ شود.
نحوه اتصال هندریل به سازه اصلی بر اساس نقشههای اجرایی (General Drawing) و نوع سازه تعیین میشود. در سازههای فلزی، اتصال هندریل به سازه معمولاً بهصورت اتصال پیچی اجرا میشود و در سازههای بتنی نیز اتصال هندریل به سازه از طریق صفحات تعبیهشده (Embedded Plate) و بهصورت جوشی انجام میشود تا استحکام و ایمنی لازم تضمین گردد.
طراحی و ساخت هندریل صنعتی
همین حالا برای دریافت لیست قیمت هندریل صنعتی و کاتالوگ فنی با واحد فروش تماس بگیرید!
افزایش ایمنی و کاهش احتمال سقوط
طول عمر بالا در محیطهای صنعتی
امکان یکپارچهسازی با استراکچرهای موجود
تعمیر و نگهداری آسان
قابلیت سفارشیسازی برای انواع کاربریها
مقاومت بالا در برابر نیروهای ضربهای و ارتعاشی
✓ سریع ✓ اقتصادی ✓ کنترل کیفیت اجرا


رنگآمیزی و محافظت هندریلهای صنعتی چگونه انجام میشود؟
برای محافظت هندریلهای صنعتی در برابر خوردگی، رطوبت و شرایط محیطی، معمولاً از سیستمهای رنگآمیزی صنعتی یا گالوانیزه گرم استفاده میشود. انتخاب روش پوششدهی کاملاً وابسته به شرایط بهرهبرداری، محیط نصب و الزامات پروژه است. در پروژههای صنعتی، اسپک فنی رنگآمیزی معمولاً شامل یک لایه پرایمر ضدخوردگی و یک لایه رنگ آلکیدی است. در شرایط سختتر محیطی، از یک لایه زینکریچ بههمراه دو لایه رنگ پلییورتان استفاده میشود تا دوام و طول عمر هندریل افزایش یابد. استفاده از هندریلهای گالوانیزه، الزامات ساخت را تا حدی تحتتأثیر قرار میدهد. در این روش، لازم است سوراخهایی در محل زانوها و اتصالات برای ورود و خروج مواد گالوانیزه در نظر گرفته شود. این موارد علاوه بر افزایش پیچیدگی ساخت، موجب افزایش هزینه ساخت هندریلها نیز میگردد.
برای دریافت مشاوره تخصصی با کارشناسان ما تماس بگیرید...
مشاوره تخصصی مهرسام صنعت
شرکت مهندسی مهرسام صنعت با بهرهگیری از تیم متخصص در زمینه طراحی، ساخت و اجرا سازههای صنعتی، آماده ارائه خدمات طراحی و مهندسی و ساخت سازه به شماست. برای دریافت مشاوره تخصصی و همکاری با واحد پروژههای صنعتی مهرسام صنعت، با ما تماس بگیرید و گام بعدی موفقیت پروژهتان را با اطمینان بردارید.
سخن پایانی
مجموعه مهرسام صنعت آماده ارائه مشاوره تخصصی در زمینه ساخت و نصب هندریلهای صنعتی متناسب با نیاز پروژه شماست. برای دریافت اطلاعات بیشتر، با ما تماس بگیرید.

بدون دیدگاه